暮らしと趣味を楽しむ
爽やかな西海岸風の家
喧騒から離れ、ゆったりと過ごす生活をイメージした
遊び心とこだわりを詰め込んだ
爽やかなサーファーズスタイルの移動式スタジオです。
期間限定移動式スタジオ見学予約受付中!
ほぼ毎日完全予約制で見学 OK栃木県宇都宮市石井町付近
OPEN:9:00-18:00

宇都宮移動式スタジオの
見どころ

見どころ01雨の日でも濡れない
嬉しい外観デザイン
ラップサイディングをあしらったラフなサーファーズハウス。
2台駐車可能なガレージと、リビングから
行き来ができるカバードポーチを設けました。
屋根続きで、雨の日でも濡れない動線を確保しました。

見どころ02昼間は電気を付けなくても
十分に明るいLDK
温かみのある無垢材の床とホワイトカラーを合わせた
ホワイトナチュラルなLDKには、開放的な吹き抜けを取り入れました。
採光を特に重視し、昼間は電気いらず。十分な明るさを保ちます。

見どころ03年中いつでも快適に
過ごしやすさを考えた空調設備
年間を通して室温を一定に保つ「全館空調」を採用。
LDKはもちろん、脱衣室やトイレも含む室内全体で
気温差を感じることなく快適に過ごせます。

見どころ04家事がはかどる
使い勝手のよい間取り
ぐるりと回遊ができる、ストレスフリーなキッチン周りは、
作業スペースを広く取り、家族全員で料理を楽しむことができる広さに。
キッチン奥にはウォークインパントリー、そして大きなカップボードを設け、
収納力も十分に確保しました。
ユーディーホームの施工事例WORKS



隠し部屋・隠し扉が楽しい秘密基地みたいなサーファーズハウス
栃木県 H様邸
家で過ごす時間を充実させる最高の家を建てたい、というお施主様の想いを実現したサーファーズハウス。「海の近くにあるような家にしたい」 というご希望を叶えたホワイトベースの爽やかな外観や、船窓を利用した隠し部屋など遊びゴコロにあふれたお住まいです



卓越した動線と配置にこだわったインダストリアルハウス
栃木県 Y様邸
洗練されたインダストリアルデザインでありながらも 家事動線やご家族の生活スタイルに合わせたレイアウトで 暮らしやすさにもこだわった平屋のおすまいです。
期間限定公開!
ガレージ付き
サーファーズハウス





海なし県でも建てられる、どこよりもかっこいい「LAの暮らしを楽しむサーファーズガレージハウス」 。そんな思いで造り上げた住まいです。

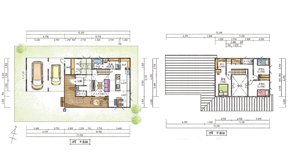
| 1F面積 | 104.34㎡ (31.50坪) | 敷地面積 | 249.03㎡ (70.01坪) |
|---|---|---|---|
| 2F面積 | 48.02㎡ (14.50坪) | 延床面積 | 152.36㎡ (46坪) |
宇都宮移動式スタジオの
見学ポイント!
- 01実際の住まいを想定した造り
- 02家事効率を考えた回遊動線のある間取り
- 03各設備は全てユーディーホーム標準仕様
- 04完全予約制でゆっくり見学
- 05見学会中に家づくりの無料相談もOK
アクセスマップACCESS MAP
24時間受付予約フォーム
RESERVE
フォームよりお問い合わせいただきますと、すぐに返信メールが送信されます。
数分お待ちいただいても折り返しメールが届かない場合は、お使いのメールサービス、メールソフト、ウィルス対策ソフト等の設定により「迷惑メール」と認識され、メールが届かない場合があります。
その場合は「迷惑メールフォルダ」等をご確認いただくかお使いのサービス、ソフトウェアの設定をご確認ください。
また、迷惑メールフォルダにも届いていない場合はドメイン指定などされている場合があります。
ご希望日の3日前までにご予約ください。


